1
/
of
4
Righetti Ridolfi
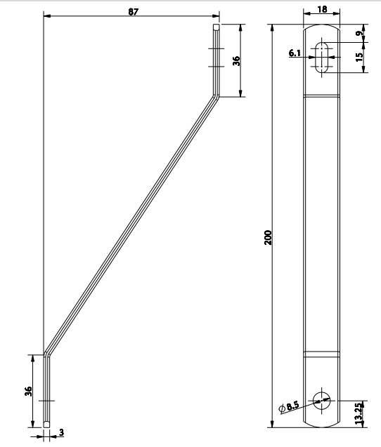
Nassau Panel Upper Supports - 19cm
Nassau Panel Upper Supports - 19cm
Regular price
$14.48 CAD
Regular price
Sale price
$14.48 CAD
Unit price
/
per
Couldn't load pickup availability
Upper Support Double for Front Panel. Length 19 cm.
Sold in Pairs.
Share



